4living
InteriorExplorer

Работ
195
Голосов
10784
Комментариев
13845
На фото:

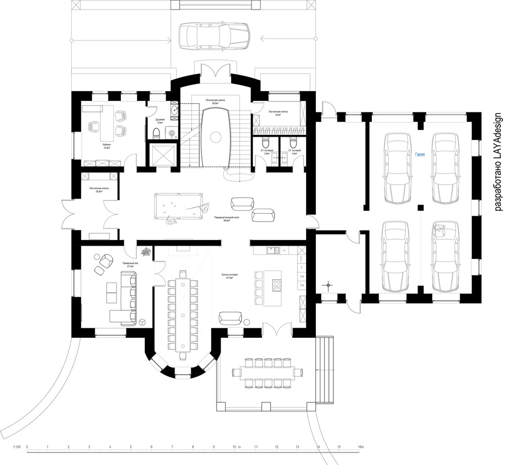
Проект оформления первого этажа (общественных пространств) загородного частного особняка в классическом стиле. Общая площадь первого этажа - 234 кв.м. Заказчик пожелал разместить в районе парадного входа бильярдный стол и гостевую лаундж зону.

На фото:

Из парадного холла открывается вид на лестницу, выполненную в классических традициях. Панели и декор проёмов выполнены из натурального дерева, кованные перила и завершающий композицию поручень - деревянная фигура льва. Напольное покрытие - натуральные породы мрамора.

На фото:

Бильярдные зоны традиционно принято оформлять в темных цветах. Мы не стали отходить от заданных традиций. На стенах используется насыщенный декор из дерева, остальные стены выделены штукатуркой насыщенного шоколадного цвета. Мы использовали довольно активный пол и потолок, что бы пространство приобрело свою индивидуальность и насыщенность. Разбавили классическое оформление особняка современной мебелью и светом, в лучших традициях итальянских вилл.

На фото:

На потолке разместилась большая роспись, венецианская штукатурка. Задумка всего особняка базируется на совмещении исторического итальянского особняка и современных элементов интерьера.

На фото:

Зона столовой, такая же масштабная, со вторым светом. В ней располагается длинный обеденный стол, огромный настоящий камин. Основной проблемой было осветить такую большую площадь и высоту потолка, для этих целей мы выбрали светильники Vibia. Напольное покрытие -натуральный мрамор.

На фото:

Кухню, примыкающую к столовой, оформили в светлых тонах. На полу выложили керамический гранит и натуральный мрамор. В центре помещения расположился остров с зоной для приготовления и баром для завтраков.

На фото:

Небольшой зал, служащий больше приватным для семейного уединения и просмотра ТВ, запроектирован архитекторами небольшим. Мы так же оформили его в светлых тонах, добавили много классической лепнины на стенах и потолке и разнообразили "звёздной" мебелью известных брендов.

На фото:

Проект оформления первого этажа (общественных пространств) загородного частного особняка в классическом стиле. Общая площадь первого этажа - 234 кв.м. Заказчик пожелал разместить в районе парадного входа бильярдный стол и гостевую лаундж зону.

На фото:

Из парадного холла открывается вид на лестницу, выполненную в классических традициях. Панели и декор проёмов выполнены из натурального дерева, кованные перила и завершающий композицию поручень - деревянная фигура льва. Напольное покрытие - натуральные породы мрамора.

На фото:

Бильярдные зоны традиционно принято оформлять в темных цветах. Мы не стали отходить от заданных традиций. На стенах используется насыщенный декор из дерева, остальные стены выделены штукатуркой насыщенного шоколадного цвета. Мы использовали довольно активный пол и потолок, что бы пространство приобрело свою индивидуальность и насыщенность. Разбавили классическое оформление особняка современной мебелью и светом, в лучших традициях итальянских вилл.

На фото:

На потолке разместилась большая роспись, венецианская штукатурка. Задумка всего особняка базируется на совмещении исторического итальянского особняка и современных элементов интерьера.

На фото:

Зона столовой, такая же масштабная, со вторым светом. В ней располагается длинный обеденный стол, огромный настоящий камин. Основной проблемой было осветить такую большую площадь и высоту потолка, для этих целей мы выбрали светильники Vibia. Напольное покрытие -натуральный мрамор.

На фото:

Кухню, примыкающую к столовой, оформили в светлых тонах. На полу выложили керамический гранит и натуральный мрамор. В центре помещения расположился остров с зоной для приготовления и баром для завтраков.

На фото:

Небольшой зал, служащий больше приватным для семейного уединения и просмотра ТВ, запроектирован архитекторами небольшим. Мы так же оформили его в светлых тонах, добавили много классической лепнины на стенах и потолке и разнообразили "звёздной" мебелью известных брендов.

Особняк в итальянском стиле.

Делимся с вами проектом частного загородного дома в Челябинской области.
Особняк, семейное гнездо, общей площадью 1000 кв.м., призванный стать отражением статуса владельца и объектом наследной недвижимости на многие годы вперед.
Поэтому и оформление выбрано историческое. Использованы натуральные напольные покрытия, мрамор и художественная паркетная доска. Натуральная гипсовая лепнина на стенах и потолке, деревянные резные элементы, порталы, панели.
Тем не менее, Для того, что бы интерьер не смотрелся сухо - мы использовали ультра современную мебель и свет, используя тренды нового времени. Понимая, что формируя отделку стен, пола и потолка таким образом, что она не потеряет своей актуальности ни через 30 ни через 60 лет, мы создаем бессмертное пространство. В которое впишется любая мебель, свет и текстиль.