PinWin – международная он-лайн-площадка, на которой в режиме нон-стоп проводятся конкурсы для архитекторов, дизайнеров, декораторов, фотографов, а так же студентов профильных вузов.
Количество конкурсов на сайте меняется.
Перечень конкурсов указан в разделе «Все конкурсы», который делится на «Текущие конкурсы» и «Архив конкурсов». Работы архивных конкурсов доступны для просмотра и комментирования.
В зависимости от целей конкурса, темы, пожеланий организаторов и партнеров, к участию в конкурсе приглашаются архитекторы, дизайнеры, декораторы, технологи, проектные организации, конструкторские бюро, производственные предприятия, строительные организации, девелоперы, дизайн-студии и мастерские, студенты и преподаватели архитектурных, дизайнерских и строительных ВУЗов и факультетов, фотографы.
Работы на конкурс принимаются до определенной даты. На странице конкурса есть ссылка «Условия», нажав на которую, можно узнать об условиях участия, механизме голосования, юридическую информацию. Дата также отображается при наведении курсора на изображение конкурса на главной странице.
Если вы хотите принять участие в проекте - необходимо зарегистрироваться. Процедура регистрации проста. Для создания аккаунта следует ввести логин и ваш контактный e-mail. На указанный электронный адрес придут два письма:
1.Письмо со ссылкой для активации аккаунта.
2.Письмо с вашими регистрационными данными.
После завершения регистрации все опции буду доступны. Вы сможете добавить свою работу, проголосовать за понравившийся дизайн-проект, оставить комментарии.
Если вы по каким-либо причинам не получили письмо с кодом активации – напишите нам в техподдержку по адресу info@pinwin.ru В письме обязательно укажите ваши данные – логин и контактный e-mail.
Следует пройти по ссылке «добавить работу», внимательно прочитать условия участия в конкурсе и поставить «галочку» о согласии с условиями конкурса. Затем приступить к «оформлению заявки».
В первом поле заявки «Название вашей работы» введите название работы, например «Природа хай-тека. Рига».
Во втором поле нужно загрузить описание проекта объёмом не более 2000 знаков с пробелами. В пояснительной записке желательно написать, в чем состоит особенность, новизна, оригинальность дизайн-проекта. Дополнительные требования к пояснительной записке вы можете узнать, пройдя по ссылке «Условия» на странице самого конкурса.
Затем загрузить изображения и выбрать главную фотографию проекта. Изображения принимаются в формате jpg не менее 1050 пикселей по ширине (вне зависимости от того вертикальный это кадр или горизонтальный).
Обратите внимание на названия файлов с изображениями - они не должны содержать кириллицы, только латинский буквы и цифры.
Количество фотоматериала регламентируется и прописывается в условиях конкретного конкурса.
Главная фотография – или обложка проекта – самая эффектная фотографий, которая максимально полно отражает суть конкурсного проекта. Технически задать главную фотографию – просто. Перетащите курсором выбранную фотографию в окошко «главное фото».
Если работа не загружается, попробуйте сделать это в другом браузере. Возможно, версия имеющегося браузера устарела. Если смена браузера не помогает, напишите нам письмо в техническую поддержку по адресу info@pinwin.ru, указав какой у вас браузер и его версию, кратко описав проблему и прописав сообщения или ошибки, которые выводятся системой. Не забудьте написать в письме ваши регистрационные данные – логин и e-mail.
Организаторы конкурса формируют жюри поэтапно, поэтому на протяжении всего конкурса возможны изменения в составе членов жюри. Состав жюри каждого конкурса можно посмотреть на странице конкурса в разделе «Жюри».
При любой активности участников и пользователей (лайки, комментарии) конкурсная работа перемещается на первую страницу, соответственно, её видит бОльшее количество участников конкурса.
При выборе финалиста недели происходит пост-модерация и проверка голосов на предмет «подозрительной активности». В случае выявления «накрутки голосов», голоса снимаются.
В зависимости от условий конкурса члены жюри могут голосовать в течение всего времени проведения конкурса, либо выбирать победителя сразу из списка «TOP-100».
После завершения конкурс попадает в раздел «Архив».
На странице завершенного конкурса вы найдете фотографию победителя, ссылку на его портфолио, ссылку на фото- и видеорепортаж с церемонии награждения. Также вы можете следить за всеми конкурсами на нашей странице в facebook
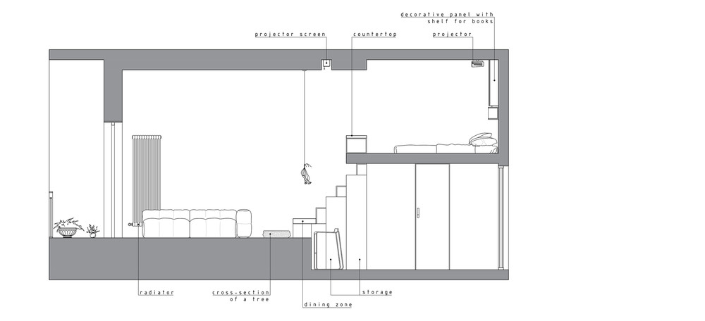
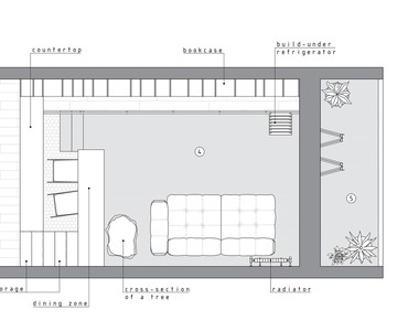
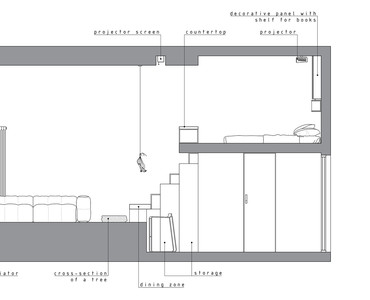
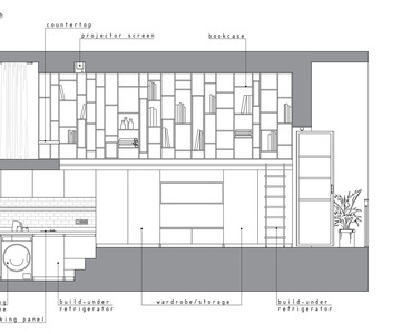
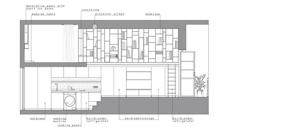
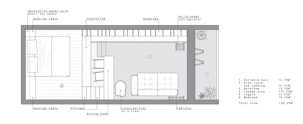
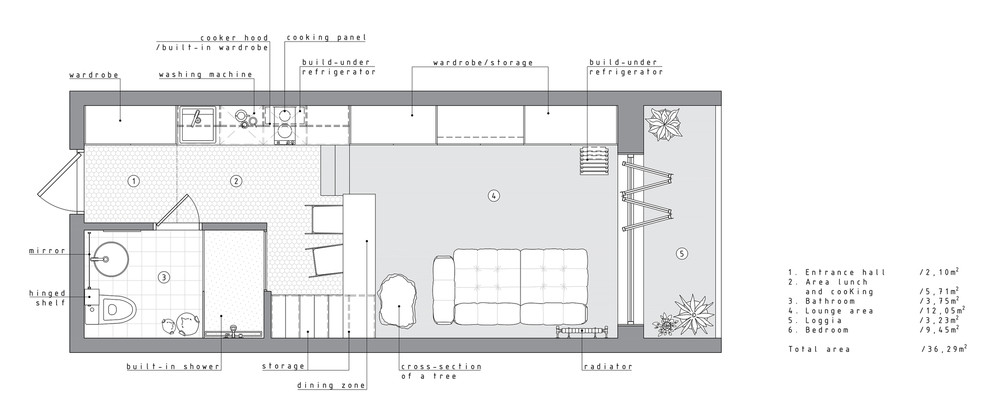
Проект был выполнен удаленно для молодого студента, проживающего в Барселоне. Рациональное использование пространства стало ключевым моментом данного проекта. Сложность проектирования заключалась в нестандартных габаритах квартиры – большая длина, при маленькой ширине, также имелся перепад пола и высокие потолки, что кардинально повлияло на конструктивное решение. Лестница стала продолжением барной стойки и вещевого шкафа, что позволило рационально использовать площадь квартиры. Коридор совмещен с кухней, где разместились стиральная машина и мини холодильник. В свою очередь антресольный этаж стал зоной для сна и работы где рабочим местом выступает столешница, отгораживающая верхний уровень, а в потолке скрыт экран для проектора. Так что нужно отметить, что при небольшой площади квартире в ней присутствует все, что может понадобиться для комфортного проживания.
T I N Y A P A R T M E N T
location: Madrid, Spain ✕ square meter: 36 m2 ✕ year: 2017 ✕ designer and visualizer: Barinov Andrey
Проект был выполнен удаленно для молодого студента, проживающего в Барселоне.
Рациональное использование пространства стало ключевым моментом данного проекта. Сложность проектирования заключалась в нестандартных габаритах квартиры – большая длина, при маленькой ширине, также имелся перепад пола и высокие потолки, что кардинально повлияло на конструктивное решение. Лестница стала продолжением барной стойки и вещевого шкафа, что позволило рационально использовать площадь квартиры. Коридор совмещен с кухней, где разместились стиральная машина и мини холодильник. В свою очередь антресольный этаж стал зоной для сна и работы где рабочим местом выступает столешница, отгораживающая верхний уровень, а в потолке скрыт экран для проектора. Так что нужно отметить, что при небольшой площади квартире в ней присутствует все, что может понадобиться для комфортного проживания.